Внимание, список готовых печатных платы выложен к тестовом магазине. Обратить внимание, что страничек в магазине несколько - перелистываем странички внизу окна. Смотреть по ссылке =>МАГАЗИН
Трансивер обеспечивает работу на всех 9-ти коротковолновых любительских диапазонах.
Типы излучений LSB, USB, CW. Чувствительность приёмника не хуже 0,3мкВ. Двухсигнальная избирательность не хуже 93дБ. Выходная мощность передатчика, в зависимости от комплектации, может составлять до 80Вт или до 100Вт.
Есть возможность «компьтерного управления» трансивером – т.н. САТ система. Использован стандартный протокол фирмы Kenwood.
Сервисные возможности.
- Отключаемый УВЧ. В зависимости от диапазона усиление УВЧ 6-12дБ – на низкочастотных диапазонах усиление минимально, на высокочастотных максимально.
- Отключаемый аттенюатор – одно фиксированное значение затухания – 12дБ.
- Для более комфортного приёма CW сигналов введено три вида дополнительного сужения полосы пропускания. Фиксированное сужение полосы пропускания по НЧ тракту (до 250Гц, пологие скаты), по ПЧ тракту (в первом кварцевом фильтре до 800Гц). Плавное сужение полосы пропускания по ПЧ (до 700Гц) за счёт изменения полосы пропускания второго кварцевого фильтра.
- На передней панели трансивера расположены регуляторы усиления низкой и промежуточной частоты приёмника.
- Для режима ТХ на передней панели расположен регулятор выходной мощности передатчика. При работе в условиях больших помех введён режим дополнительного ограничения сигнала SSB передатчика, который можно включать на передней панели. Выбран максимально эффективный режим ограничения SSB сигнала – по промежуточной частоте. Желаемую степень ограничения можно выставить подстроечным резистором на основной плате трансивера.
- Обеспечена система VOX как для SSB так и для CW. Т.е. трансивер можно переводить на передачу либо голосом (от звука в микрофон) либо при нажатии на телеграфный ключ.
Передняя панель трансивера.
Расположение органов управления на передней панели трансивера.
Ручки: «AF GAIN» - регулировка усиления по УНЧ, «IF GAIN» - регулировка усиления по ПЧ, «RF Power» - регулировка выходной мощности передатчика, «IF VBT» – регулировка полосы пропускания кварцевого фильтра.
Кнопки: «AMP» - включение УВЧ, «АТТ» - аттенюатор, «U/L» - USB/LSB (верхняя-нижняя боковые полосы), «VOX» - голосовое управление трансивером – работает в режимах и SSB и CW. «AF СW» - сужение полосы пропускания по низкой частоте.
Поле из двенадцати кнопок в правой части панели, относящихся к синтезатору, будет описано в разделе синтезатора. Что хотелось бы отметить по «кнопочным» режимам? Это то, что любой из режимов можно подстроить по индивидуальному желанию радиолюбителя.
Конструкция трансивера базируется на отработанной предыдущей модели DN-2000.
Изменению подверглись блоки «Основная плата», ШПУ, незначительно плата ДПФ. Принципиально изменён синтезатор частоты. Отработаны несколько полностью взаимоменяемых вариантов синтезаторов с использованием DDS.
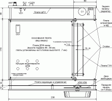
Схема межблочных соединений.
Схематический чертёж корпуса трансивера.
Стабилизатор напряжения питания цифровой части DA3 (Крен 5А) прикручивается в любом удобном месте, например, как это показано на чертеже корпуса, на задней панели-радиаторе. Гасящий резистор R1 10-15Ом мощностью не менее 2Вт. Ёмкость конденсатора С1 зависит от выходной мощности ШПУ (соответственно бросков потребляемого тока). Конечно, TRX будет неплохо работать и без этого конденсатора, но при понижении сетевого напряжения, разряде аккумулятора, длинных соединяющих проводах между трансивером и блоком питания, возможна просадка питающего напряжения, для компенсации которой и служит этот конденсатор. Чем больше ёмкость конденсатора, тем выше его буферные свойства. Но при этом возникает проблема с запуском стабилизатора - очень большой зарядный ток конденсатора вызывает срабатывание защиты от КЗ. Поэтому приходится "загрублять" защиту от КЗ (см. описание Б.П.) или можно использовать переключатель PWR с дополнительным положением в котором С1 подзаряжается через токоограничивающий резистор. Стабилитрон Д1 защищает трансивер от переполюсовки и превышения питающего напряжения выше напряжения стабилизации Д1 (18В). Если применить Д815Е - эта простейшая, но надёжная защита, отработает уже при превышении питающего напряжения выше 15В - сгорит предохранитель FUS. Предохранитель должен быть рассчитан на потребляемый ток. Переменные резисторы AF(регулировка УНЧ), RF(регулировка УПЧ), PWR (регулировка выходной мощности) располагаются на передней панели. Конденсатор С3 служит для устранения подвозбуда на максимальных уровнях громкости. Платы в корпусе трансивера устанавливаются на металлических стойках, но это не исключает дополнительной шины "земли", которая соединяет все платы между собой. Плата ШПУ прикручивается непосредственно к радиатору без стоек.










